1. Kehys, jiiritrimmattu

Tässä harjoituksessa opimme
Ohjakäyräosan (skeleton / jigi) käytön profiilirakenteiden mallintamisessa.
Profiilin lisäys ohjauskäyrälle siten että automaattinen jiiri-trimmaus on valittuna.
Luomaan mallille piirustuksen.
Profiililuettelon eli katkaisulistan generointi tekstitiedostoon.
Profiililuettelon eli katkaisulistan generointi Exceliin.
Profiililuettelon eli katkaisulistan generointi kuvalliseksi katkaisulistaksi.
Profiilien mittojen muuttamisen ohjauskäyräosaa muokkaamalla.
Video
Kesto 2min 3sek
Tee uusi kokoonpanomalli
File > Uusi > Kokoonpano.
Syötä mallin tunnus.
Täytä arkistotiedot (Arkistot. painike).
Valitse olemassa oleva projekti tai tee uusi projekti.
Valitse = Selaile projekteja ja valitse projekti.
Uusi = Perusta uusi projekti ja syötä projektin tiedot.
OK.

Tee uusi ohjauskäyrä-tyyppinen osa
Tilannekohtainen toiminto: Uusi ja sitten Osa.
Valitse: Paikallinen.
Anna nimi, esim. SKELETON tai JIGI.

Ohjauskäyrä profiilirakenteen perustana
Suosittelemme vahvasti, että ensin mallinnetaan ohjauskäyrä, jota käytetään ohjaamaan profiilien mallintamista kokoonpanoon.
Kun ohjauskäyrää muutetaan, muuttuvat myös profiilien pituudet helposti.
Profiileita voidaan lisätä kokoonpanoon myös ilman ohjauskäyrää tai profiileita voidaan mallintaa käyttämällä hyväksi myös muiden osien tai profiilien reunaviivoja.
Ilman ohjaavaa käyrää mallinnetut profiilit lukittuvat paikoilleen ja ne voidaan paikoittaa keskenään myös ehdoilla sen jälkeen, kun ns. kiinnitys on ensin irrotettu.
Määritä, ettei ohjauskäyrä osa tule osaluetteloon
Tilannekohtainen toiminto: Ominaisuudet.
Poista valinta: Kokoonpanon osaluetteloon, sillä tätä osamallia ei haluta osaluetteloon, onhan se täysin "aineeton" osa.

Luonnostele ohjauskäyrä
Tilannekohtainen toiminto: Uusi luonnos > Pysty(XZ)-tasoon.
Luonnostele suorakulmio ja anna sille mitat; 500 ja 400.
Toimenpide: Ohjauskäyrä.
Poistu osamallinnustilasta kokoonpanoon
OK-toiminta palaa muokattavana olevasta osamallista (SKELETON) kokoonpanoon.

Häviääkö ohjauskäyrä näkyvistä
Jos luonnoksesta poistumisen ja ohjauskäyrä-toimenpiteen jälkeen ohjauskäyrää ei näy, niin se johtuu siitä, että apugeometria on piilotettu.
Palauta (ja piilota) apugeometria näkyviin G-näppäimellä.
Lisää profiilit
Tilannekohtainen toiminto: Lisää > Profiili.
Vallitse profiili kirjastosta Profiilit > Ohutseinäputki > SSAB_10305_SQUARE (Nelikulmainen ohutseinäputki).
Valitse koko: SSAB_50x2.
Valitse trimmaustavaksi: Automaattitrimmaus Jiiriin, kuvassa 1).
Osoita ohjauskäyrän viiva, kuvassa 2).
Valitse toinen ohjauskäyrän viiva, kuvassa 3).
Osoita myös kolmas ja neljäs viiva.
Lopeta profiilien lisäys Esc-näppäimellä tai tilannekohtaisella toiminnolla OK.


Vaihtoehtoinen tapa käynnistää profiilien lisäys
Käytä valintanauhan toimintoa Lisää > Profiili.

pisen ja samankokoisen) profiilin, niin:
Osoita profiili.
Tilannekohtainen toiminto: Lisää > Sama profiili.
Lisää samanlainen profiili, joka jo löytyy mallista
Jos kokoonpanossasi on jo profiileita ja haluat lisätä samanlaisen (saman tyyp
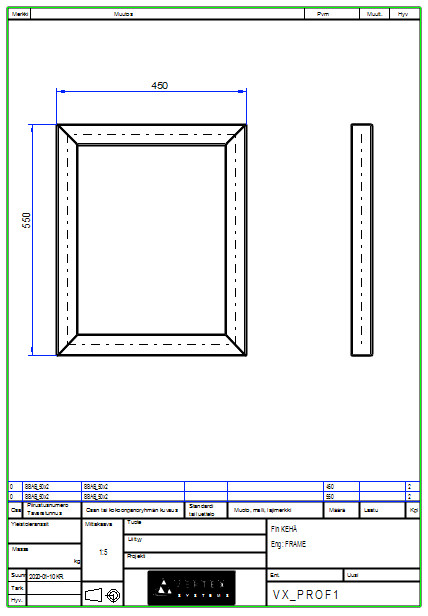
Tee mallille piirustus
Valitse piirrepuusta: Piirustukset.
Tilannekohtainen toiminto: Uusi piirustus. (Katso tarvittaessa tarkemmat ohjeet osamallinnuskurssin harjoituksesta: 2. Mallin piirustus)
Mittakaava: 1:5
Lomake: A4
Projektiot: edestä ja vasemmalta.
Tangentiaaliset viivat: Ohuena viivana.
OK etenee arkistotietojen antoon.
Piirustukseen tulostuu osaluettelo, jossa on mm profiilin pituudet määrä-kentässä.

Tallenna piirustus
File > Tallenna.
Muista, että malli pitää tallentaa piirustuksen luonnin jälkeen kertaalleen, jotta mallin piirrepuuhun, kohtaan Piirustukset, jää talteen piirustuksen tunnus, jota kautta voit myöhemmin lukea piirustuksen.

Tulosta katkaisulista tekstitiedostoon
Voit tulostaa kokoonpanomallissa olevista profiileista katkaisulistan tekstitiedostoon seuraavasti:
Tilannekohtainen toiminto: Osaluettelo.
Valitse tulostusformaatiksi: Katkaisulista.
Anna tiedostolle nimi ja valitse hakemisto.


Tässä luettelossa näkyvät myös katkaisukulmat.
Tulosta katkaisulista Exceliin
Tilannekohtainen toiminto: Osaluettelo.
Valitse tulostusformaatiksi: Katkaisulista Exceliin.
Riippuen Excelin asetuksista:
Excel avataan ja sinne generoituu katkaisuluettelo.
Excel avautuu, mutta ohjelma pyytää lupaa makrojen suoritukseen.
Excel ei edes avaudu, koska makrojen suoritus on kielletty.
Anna tiedostolle tarvittaessa nimi ja tallenna se.


Excelin makrot
Jos listaa ei Exceliin synny, sinun pitää sallia Excelin makrojen suoritus
Joko aina.
Tai sitten kysyttäessä makrojen suoritusta, anna lupa siihen.
Tulosta kuvallinen katkaisulista
Tilannekohtainen toiminto: Osaluettelo.
Valitse tulostusformaatiksi: Kuvallinen katkaisulista.
Ohjelma generoi katkaisulistan Vertex-piirustukseksi, jonka voit tulostaa.
Ohjelma mahdollistaa sen, että piirustus tallennetaan arkistoon ja se näkyy myös mallin piirrepuussa.
Huomaa kuitenkin, ettei tällainen kuvallinen katkaisulista-piirustus ole päivittyvä, eli jos malli muuttuu, niin tämä piirustus ei muutu.


Tallenna malli
File > Tallenna
Muokkaa profiilikehän kokoa
Muokkaa ohjauskäyräosaa SKELETON:
Valitse piirrepuusta malli: SKELETON.
Ota tilannekohtainen toiminto: Muokkaa.
Valitse osamallin piirrepuusta piirre: Ohjauskäyrä.
Ota tilannekohtainen toiminto: Muokkaa luonnosta.
Muuta mittoja: 500 > 600 ja 400 > 300.
Poistu luonnoksesta: OK.
Palaa osamallista kokoonpanoon: OK.
Päivitä mallin profiilit ohjauskäyrän mittoihin:
Tilannekohtainen toiminto: Ratkaise.
Avaa piirustus ja päivitä se
Näet, että myös piirustuksen osaluettelotiedot muuttuvat.
