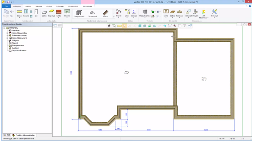
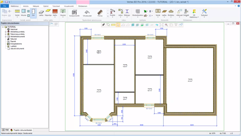
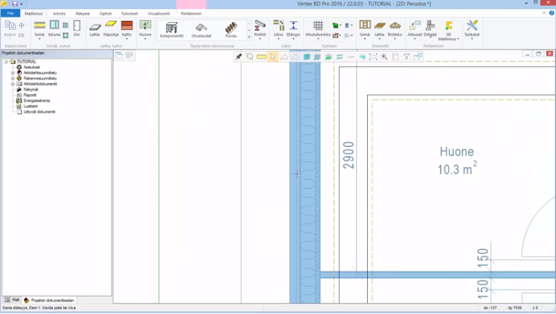
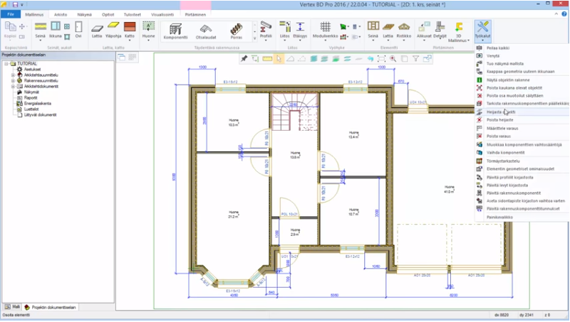
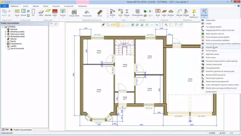
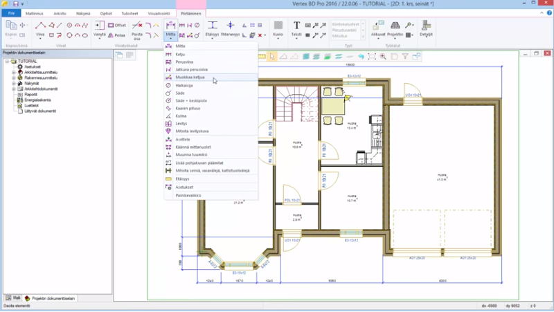
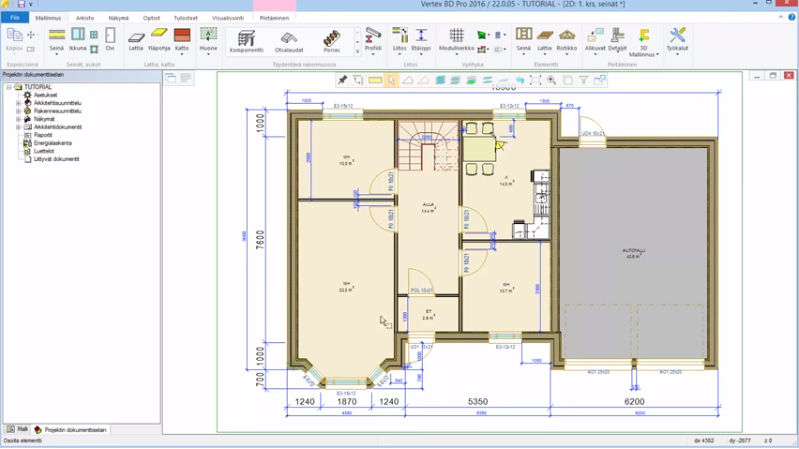
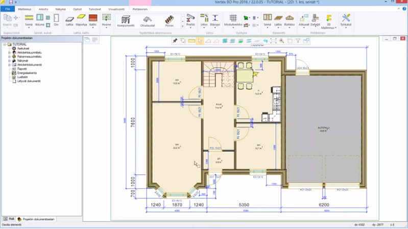
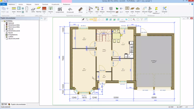
Arkkitehtisuunnittelu
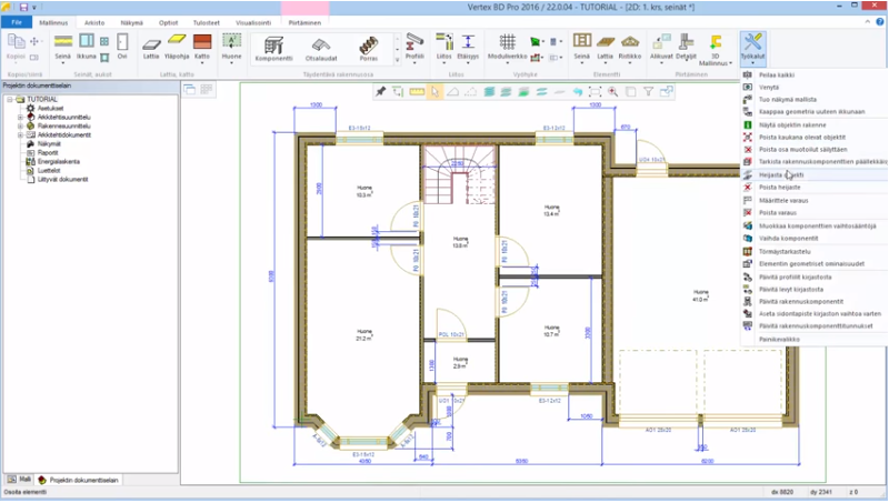
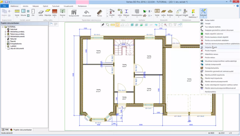
Arkkitehtisuunnittelussa luodaan talomalli joka näyttää ulkoapäin valmiilta, mutta talon rakenteita ei olla vielä määritelty. Tämä videosarja käy läpi perustoiminnollisuuden, kuinka luot Vertex BD:llä kaksikerroksisen pientalon arkkitehtimallin. Arkkitehtisuunnittelun jälkeen mallin suunnittelu jatkuu rakennesuunnittelulla.


















