Vertex BD yleiskatsaus
Vertex BD on rakennusalan johtava suunnittelu- ja teidonhallintaohjelmisto. Vertex BD tarjoaa monipuoliset työkalut alkaen myynnistä toimitusprojektin jokaiseen vaiheeseen sekä rakennusliikkeen ja talotehtaan että niiden myyjien ja alihankkijoiden käyttöön.
Suunnittelu pohjautuu kolmiulotteiseen tietomallintamiseen jota hyödynnetään monipuolisesti Vertex BD:ssä. Piirustusten lisäksi mallista saadaan esimerkiksi visualisoidut kuvat, materiaalilistaukset ja työstötiedot. Malli voidaan siirtää myös toiseen suunnittelujärjestelmään.

Opastava käyttöliittymä
Älykäs tietomalli
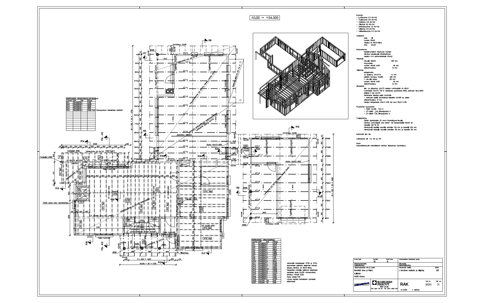
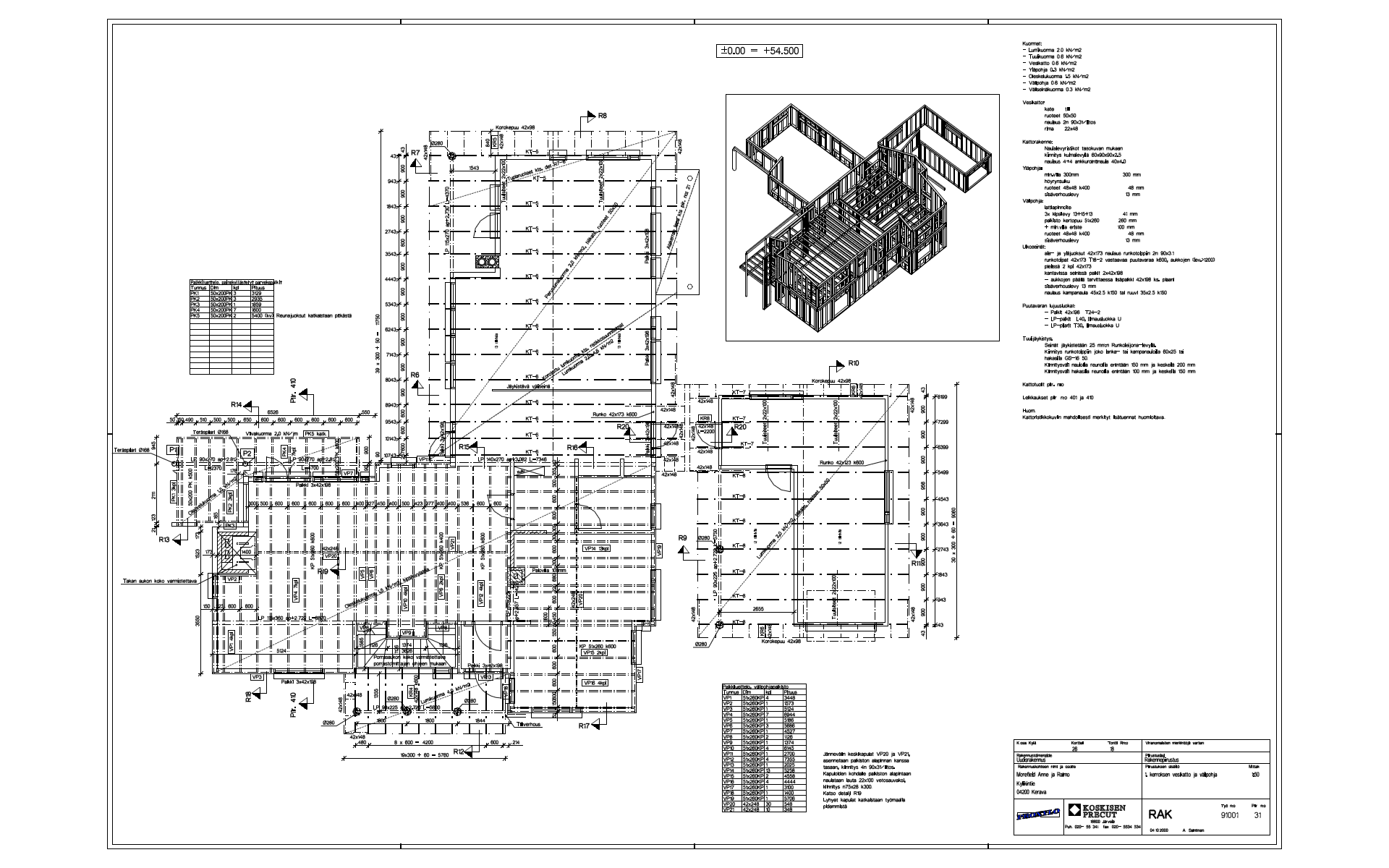
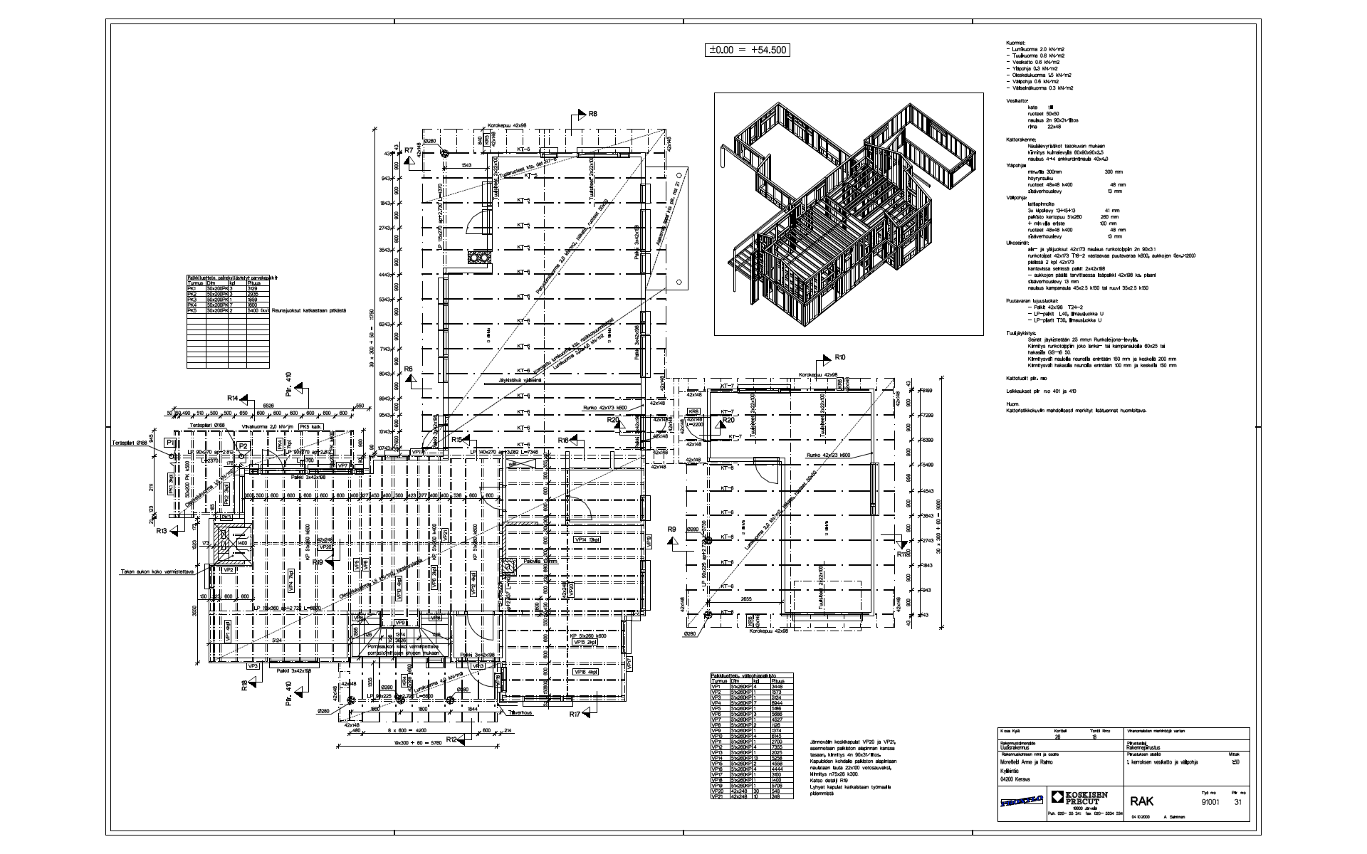
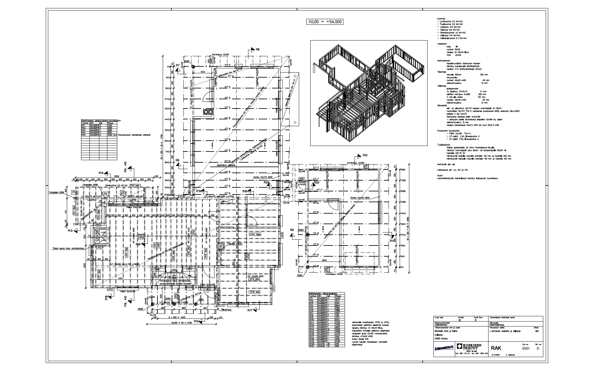
Vertex BD:llä toteutettu suunnittelutieto tallennetaan älykkääseen tietomalliin jota hyödynnetään suunnittelun eri vaiheissa. Malli sisältää kaiken suunnittelussa käytetyn tiedon ja sitä voidaan hyödyntää monella tavalla. Rakennuksen arkkitehti- ja rakennepiirrustukset ovat yleisin tärkeimmät mallista tuotettavat dokumentit, mutta näiden lisäksi mallista saadaan tuotettua helposti esimerkiksi määräluettelot ja valokuvan kaltaiset visualisoidut kuvat.



Automaattitoiminnot
Tietomalli rakentuu virtuaalisesti todelisia rakenneosia vastaavista osista. Vertex BD:n automaattitoiminnoilla tietomalli saadaan tuotettua nopeasti ja tehokkaasti arkkitehti- ja rakennesuunnittelun tarpeisiin, lisäksi se vähentää inhimillisten suunnitteluvirheiden määrää. Vertexin automaattitoimintoja voidaan säätää asiakaskohtaisesti, jolloin vakioratkaisuilla toteutettuja rakennusten suunnittelu tehostuu lisää.

Rakenneosat
Mallin rakenneosat määräytyvät sääntöpohjaisesti kerroksittain, joten esimerkiksi seinän jokaisella kerrokselle voidaan määritellä säännöt osien sijoittelusta ja lukumäärästä. Rakenneosat on mallinnettu tarkasti oikean kokoisiksi ja ne sisältävät kaikki niiden työstämiseen tarvittavat tiedot.
Rakenneosat voivat kuulua elementtirakenteeseen, jolloin rakenneosat vaikuttavat tämän elementtikuvaan. Rakenneosista saadan tuotettua myös yksilölliset kuvat automaattisesti. Osatieto voidaan tallentaa myös työstökoneiden ymmärtävään muotoon, jolloin osien valmistukseen ei tarvita piirustuksia, vaan tiedot siirtyvät sähköisesti suoraan suunnittelujärjestelmästä tuotantokoneelle.

.jpg?inst-v=40690509-cc20-4160-88c5-9acc4d6b8913)
