5. Kaareva seinä
Harjoitus 5: Kaareva seinä

Tässä harjoituksessa opimme
Suuntaamaan profiilin poikkileikkauksen
Sen että kaarevaan profiilia ei voi trimmata.
Piirustuksen leikkausprojektion luonnin ja sen ominaisuuksien muokkauksen.
Video
Kesto 4min 26sek
Uuden kokoonpanomallin aloitus
File > Uusi > Kokoonpano. (Anna nimi ja arkistotiedot ja tee uusi projekti tai valitse vanha projekti).
Tee uusi ohjauskäyrä-tyyppinen osa
Tilannekohtainen toiminto: Uusi ja sitten Osa.
Valitse: Paikallinen
Anna nimi, esim. SKELETON tai JIGI.

Määritä, ettei ohjauskäyrä osa tule osaluetteloon
Tilannekohtainen toiminto: Ominaisuudet.
Poista valinta: Kokoonpanon osaluetteloon, sillä tätä osamallia ei haluta osaluetteloon, onhan se täysin "aineeton" osa.

Mallinna kaarevan seinän poikkileikkauksen muoto
Tilannekohtainen toiminto: Uusi luonnos > Poikittais(YZ)-tasoon.
Piirrä muoto, Kahden pisteen viiva + Kaari (kolme kehäpistettä), kuva A.
Lisää yhdensuuntaisuusviiva: Offset: 50, kuva B.
Muuta yhdensuuntaisviivojen ominaisuudet apuviivaksi, sillä niiden ei tarvitse näkyä mallissa.
Piirrä 8 janaa, käytä viivatyyliä Ohjauskäyrä, kuva C.
Lähde liikkeelle muotoviivasta ja päätä viiva apuviivalle.
Neljä alinta viivaa vaakasuuntaisena.
Kolme seuraavaa viivaa vinoon asentoon (Suurin piirtein kaaren keskipistettä kohti).
Ylin viiva ohjauskäyrien päästä päähän.
Määritä neljä ylintä janaa kaaren tangentille kohtisuoraksi seuraavasti. Kuva D.
Yhtenevyysehto.
Osoita janaa, kuvassa 1).
Osoita kaaren keskipiste kaaren sisäpuolelta, kuvassa 2).
Jos jana näyttäisi häviävän näkyvistä, paina F5-näppäintä, jolloin kuvarajat lasketaan ja näet mahdollisesti "karanneen" janan. Karkaaminen johtuu siitä että viivan suunta yhdessä yhtenevyysehdon kanssa asemoi viivan uudelleen.
Raahaa jana tarvittaessa lähelle oikeaa paikkaa.
Lisää tarvittaessa janojen päätepisteiden ja ohjausviivojen välille yhtenevyysehdot.

Lisää kaksi etäisyysehtoa (Profiilin paksuuden puolikkaan mitta, esim. 10)
Alimmalle janalle etäisyys keskiristin vaavaviivasta.
Ylimmän janan ja seuraavan janan päätepisteen välille.

Paikoitetaan janat Sama etäisyysehdon avulla siten että ne jakavat pystyjanan kolmeen yhtä suureen osaan ja kaaren kolmeen yhtä suureen osaan. Tätä varten täytyy käyttää samaetäisyysehtoa neljä kertaa.
Toiminto: Sama etäisyys

,
Kuvissa A ja C on osoitettu neljä eri pistettä.
Voit keskeyttää ehdon lisäämisen ja kokeilla raahata toista viivaa, jolloin näet, että molemmat viivat liikkuvat.
Kuvissa B ja D on keskimmäinen piste osoitettu toiseksi ja neljänneksi pisteeksi.
Toimenpide:
Ohjauskäyrä.

Mallinna toinen edellisen muotoinen ohjauskäyrä
Palauta näkyviin piirrepuusta Poikittais(YZ)-taso (ellei se jo ole näkyvillä).
Valitse aputaso ja tilannekohtainen toiminto: Uusi luonnos > Yhdensuuntaisesti.
Anna mitaksi 1200 ja kaavaksi PIT.
Kopioi edellisen luonnoksen viivat tilannekohtaisella toiminnolla: Viiva > kopioi luonnostasoon tai valintanauhan toiminnolla Kopioi viivoja.
Muuta tarvittaessa viivatyypit muoto- tai ohjausviivoiksi.
Toimenpide:
Ohjauskäyrä.

Mallinna ohjauskäyrät vaakaprofiileita varten
Siirry 3D-luonnostelutilaan valintanauhan toiminnolla 3D tai tilannekohtaisella toiminnolla: Uusi luonnos > 3D-luonnos.
Piirrä janat. Huomioi että ne lähtevät ja päätyvät viivojen päätepisteisiin.
Poistu 3D-luonnostelutilasta tilannekohtaisella toiminnolla OK.
Poistu osamallista SKELETON kokoonpanomalliin tilannekohtaisella toiminnolla OK.

Lisää päätyjen profiilit
Tilannekohtainen toiminto: Lisää > Profiili.
Vallitse profiili kirjastosta: Profiilit > Ohutseinäputki > SSAB_10305_RECTANGULAR (Suorakulmainen ohutseinäputki).
Valitse koko: SSAB_50X20X2.
Huomaa, että Tangentiaalisuus-valinta on voimassa.
Osoita pystyviivat.
Tarkasta että profiili on kuvan mukaisessa asennossa

Lisää vaakasuuntaiset profiilit
Kuten edellä, mutta huomaa automaattinen trimmaus pintaan

Tarkastele profiileita.
Kolme ylintä profiilia ovat "väärässä" asennossa, sillä niiden haluttaisi ovat kaarelle tangentiaalisesti.

Asemoi ylimmäinen profiili
Valitse profiili.
Tilannekohtainen toiminto: Muokkaa profiilin > Poikkileikkausluonnosta.
Kopioi SKELETON-osasta viiva luonnokseen, kuvat B ja C esim. toiminnolla Kopioi viivoja.
Lisää yhtenevyysehto edellä kopioidun viivan 1) ja poikkileikkauksen symmetriaviivan 2) välille, kuva D.
Poistu luonnostelutilasta: OK.

Asemoi samalla tyylillä kaksi seuraavaksi ylempää profiilia

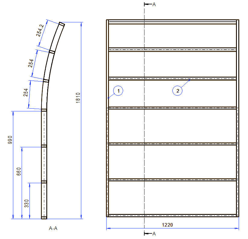
Tee mallille piirustus
Katso tarkemmat ohjeet osamallinnuskurssin harjoituksesta: 2. Mallin piirustus.
Luo piirustukseen leikkausprojektio
Valitse projektio ja tilannekohtainen toiminto: Leikkaus.
Osoita lähtö ja päätepiste ja lopeta pisteiden antaminen OK:lla.
Osoita leikkaussuunta ja sijoita leikkausprojektio.
Jos nyt yrität mitoittaa esim. profiilien välejä, niin se (oletuksena) onnistu.
Valitse leikkausprojektio ja tilannekohtainen toiminto: Ominaisuudet.
Vaihda Leikkauksen ominaisuuksista Nopea leikkaus Tarkkaan leikkaukseen.
Tämän jälkeen voit mitoittaa myös leikkausprojektiossa leikattuja osia.
Leikkausprojektio, Nopea vai Tarkka
Avainsanalla sectionviewdefault voi määrittää piirustukseen syntyvien leikkausprojektioiden laadun seuraavasti:
0 = aina tarkka leikkaus
1 = nopea leikkaus kokoonpanomalleista, tarkka osamalleista (Tämä on oletusarvo, eli voimassa vaikka avainsana puuttuisi).
2 = nopea leikkaus osamalleista, tarkka kokoonpanomalleista
3 = aina nopea leikkaus
Avainsanalla sectionview_pipes_and_profiles voi tarkentaa profiilien ja putkien leikkausta seuraavasti:
0 = Avainsana ”sectionviewdefault” ratkaisee leikkaustavan. (0 on oletusarvo)
1 = Putket ja profiilit leikataan tarkasti, vaikka muu geometria leikattaisi nopeasti.
Avainsanoihin pääset käsiksi: File > Järjestelmäasetukset > Muokkaa > ylläpitäjän näkymä.
Avainsanan löydät kohdasta 3d > Default value for fast or accurate section view at drawings based on models

Tallenna malli
File > Tallenna