2018 Kaaviot
Kytkentäpuolen asetus -toiminnon kehitys
Tunnus -valikkoon on lisätty kytkentäpuolen asetus-toiminto, jolla kytkennän puolisuus voidaan asettaa symbolien kytkentäpisteille.
Kytkentäpisteen kahvan valikosta voi asettaa kytkentäpuolen tai poistaa asetuksen: Puolisuusvaihtoehdot ('1' eli uros tai '2' eli naaras tai '' eli ei asetusta). Puolisuus tulee esiin johdotusviittauksia täydennettäessä ja johdinsarjoissa, joissa puolisuus on annettu johdinsarjakuvaan.
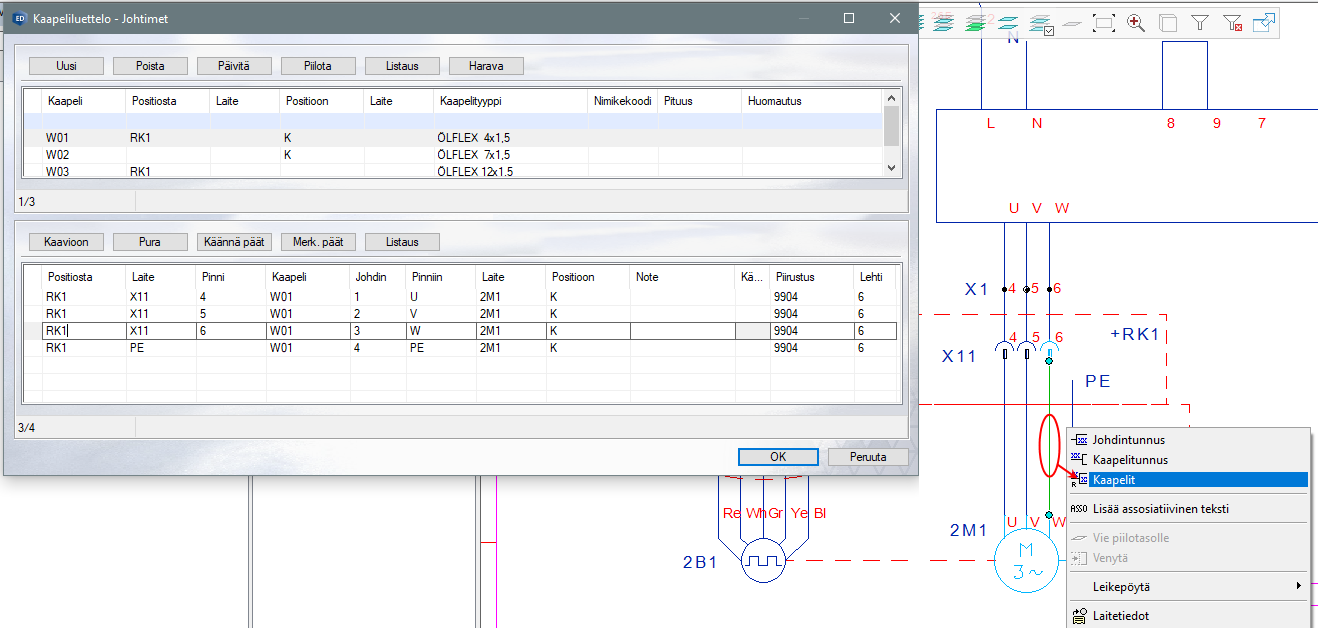
Kaapelitietojen käsittelyn toiminnot kohdistuvat sujuvammin työstettävään kohtaan
Kaapelitoiminnot käynnistyvät nopeasti kaavion johdinviivoista. Kaapelointidialogi avautuu valitun johtimen kohdalle.
Tarkistat tilanteen ja teet muutokset helposti juuri siihen kohtaan, jota olet muutenkin miettimässä.

Lehtisarjatoiminnoissa piirustusten valinta monipuolisemmin
Lehtisarjatoiminnoissa Piirustusnumero/-ryhmä valintalistalla on alussa projektista löytyvät piirustusryhmät etuliitteellä
Ryhmä: sitten valinta "< Valitse piirustus >"
ja lopuksi projektin piirustukset.
"< Valitse piirustus >" -valinta käynnistää dialogin kuittauksen jälkeen piirustusten valinnan projektin kaikkien piirustusten listalta. Muussa tapauksessa suoritetaan valitut toiminnot joko valitulle yksittäiselle piirustukselle tai valitun ryhmän piirustuksille.

Tasovalikko uudistettu nopeammaksi ja selkeämmäksi
Tasojen ja tasoryhmien valinta on selkeytynyt ja nopeutunut. Tasolistalla näkyy oletusarvoisesti vain tasot, joilla on jotain sisältöä. Käyttämättömät tasot saa tarvittaessa helposti näkyviin. Tasovalintojen muutokset näkyvät käyttäjälle heti. Listalla ei näy lainkaan nimettömiä tasoja joilla ei ole grafiikkaa. Nimettömät tasot puuttuvat myös elementtien ominaisuuksien tasolistalta.

Tekstien ja tunnusten sisällön massaeditointityökalu
Aktiivin sivun kaikki tekstimuotoiset elementit voidaan avata yhteen näkymään tekstisisällön editointia varten. Näkymää voi järjestellä ja suodattaa monipuolisesti esimerkiksi tekstityypin tai tekstisisällön tai molempien mukaan. Muokattavaksi valitut tekstit merkataan harmaannuttamalla kaikki muut kuvaelementit. Muokkauslistalla voidaan tehdä monivalintoja ja valitut tekstit näytetään vihreänä piirustuksessa.

Vie piilotasolle - Palauta piilotasolta
Kaavioissa käytetään toisinaan paljon asioita piilotettuna. Nyt on helppo viedä elementtejä piilotasolle ja myöskin palauttaa piilotasolta takaisin normaaleille tasoille. Toiminnot löytyvät Tilannekohtaisesta valikosta.
Toiminnot tarvitsevat vähintään yhden Piilotaso -rooliin määritellyn tason, jotta ne aktivoituvat.

Vie piilotasolle tallettaa elementin senhetkisen tason, jota käytetään Palauta piilotasolta -toiminnossa automaattisesti. Mikäli elementti on piilotasolla jo valmiiksi muiden toimintojen seurauksena, Palauta piilotasolta -toiminto tuo sen kyseisen elementtityypin oletustasolle. Toiminnot toimivat myös monivalinnoilla.
Katkaisuviitteeseen enemmän tietoa
Katkaisuviitteessä voidaan näyttää sijaintiviittauksen lisäksi johtimen toisen pään kytkentätieto. Kytkentätieto voidaan näyttää joko muodossa LAITE:Pinni tai kahtena erillisenä tekstinä LAITE ja Pinni.

Kytkentätietojen määrittely tehdään katkaisuviitesymbolin tekstipisteisiin.
Uuden ohjelmaversion mukana tulee mallisymboli, jonka kopioit helposti omaan symbolikirjastoosi.
