Putkistosuunnittelu 2022

Nämä uudistukset on esitelty pääversiossa 28.0.00 (2022)
Putkistosuunnittelu
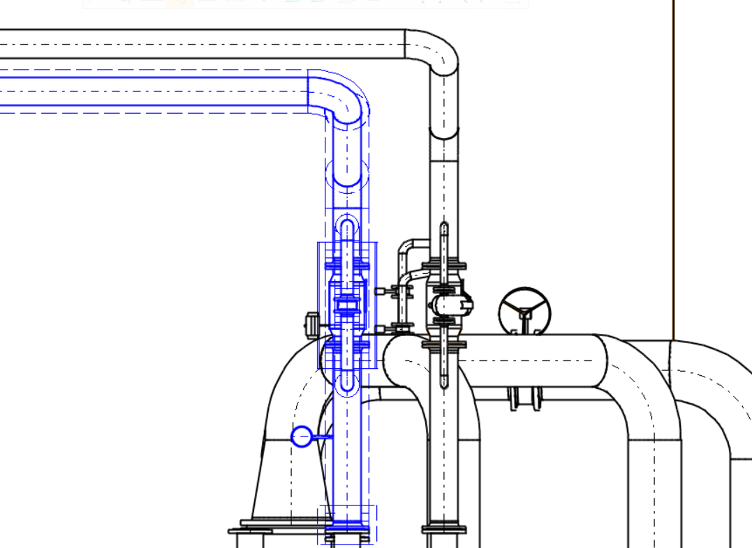
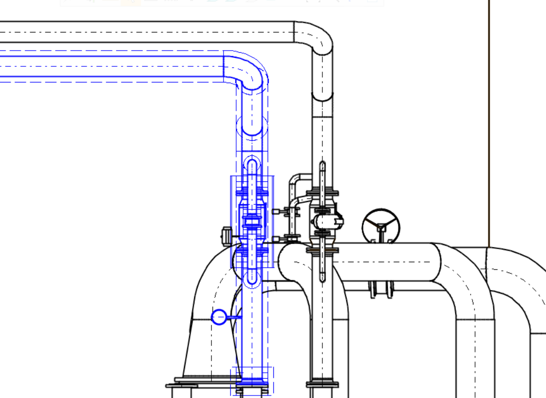
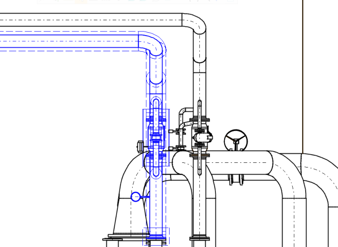
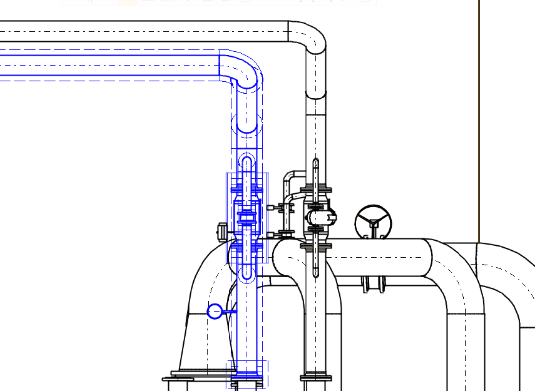
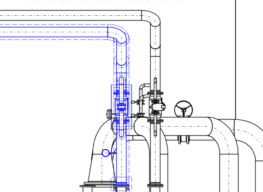
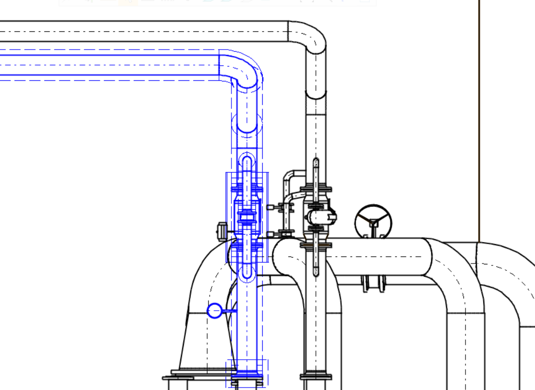
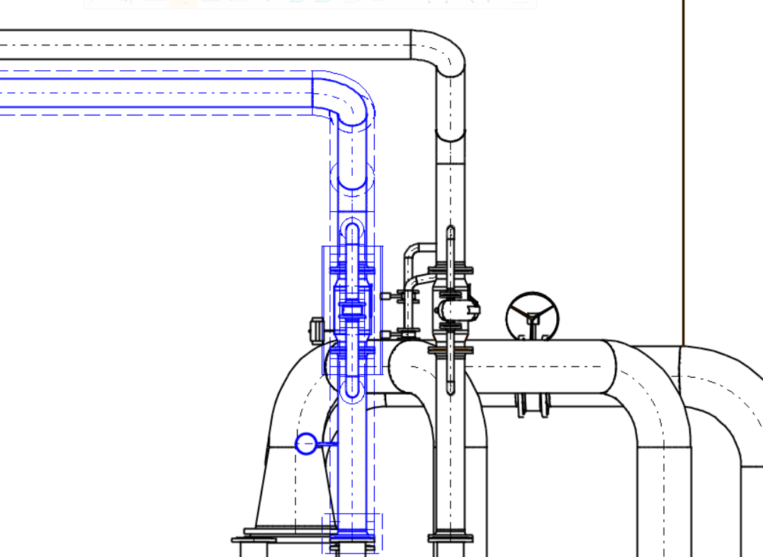
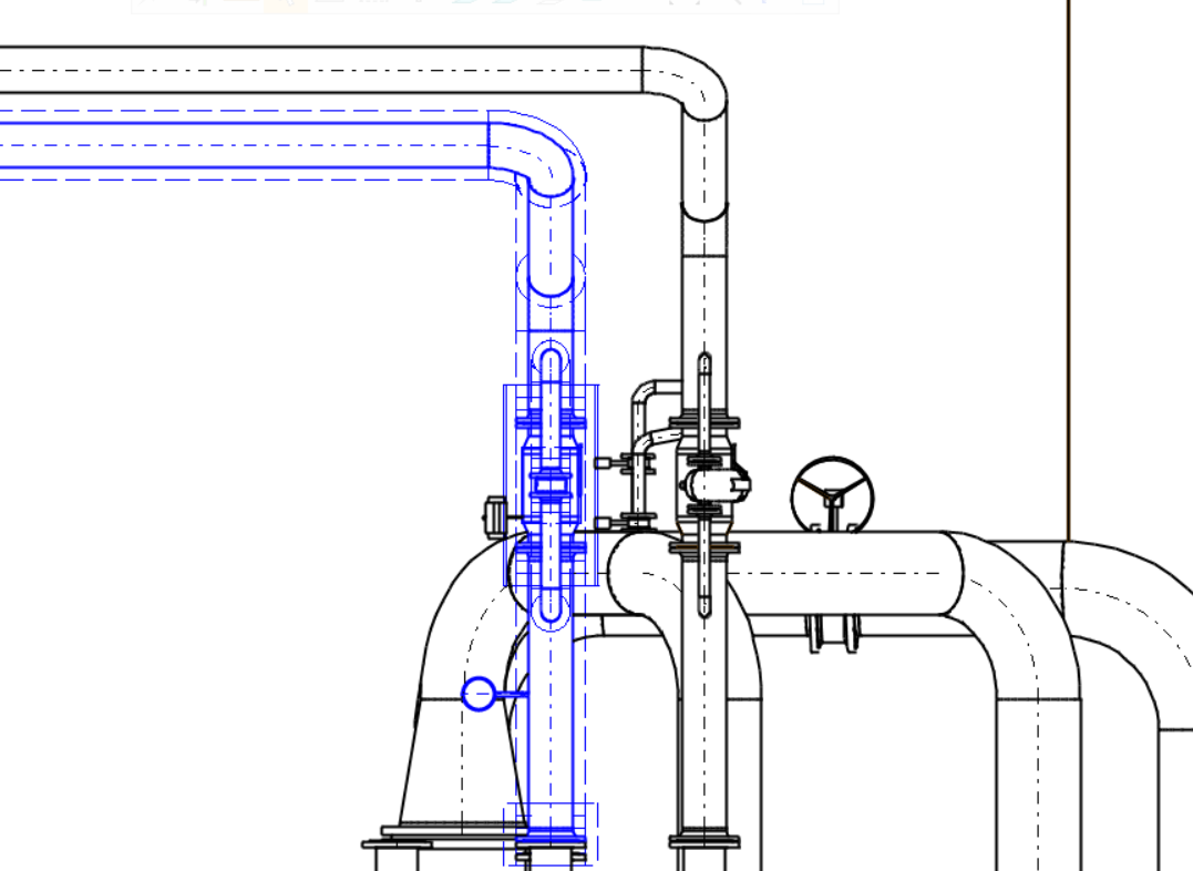
Parannettu vieton muokkaus kannakoidulla putkilinjalla
Vieton muokkaukseen on tehty tuki myös kannakoidulle putkilinjalle. Kannakkeet siirtyvät automaattisesti putkilinjan mukana vietolle ja uudelle korkeudelle origopisteensä suhteen
Kannakkeiden yhtenevyysehdot putkilinjalle ja suuntalukitukset säilyvät kuten liitekuvassa havainnollistetaan. Huom! Jos kannakkeet ovat rinnakkaisessa linkkikokoonpanon, toimii siirto näille vain mikäli kokoonpano ei ole jäädytetty.
Huom! Jos kannakkeet ovat rinnakkaisessa linkkikokoonpanossa, toimii siirto näille vain mikäli kokoonpano ei ole jäädytetty (asetus Alikokoonpanona jäädytetty).
Kahvaliitoksen muokkausdialogin uudistus
Kahvaliitoksen muokkausdialogi on nyt samantyylinen muiden kokoonpanoehtojen dialogien kanssa. Dialogissa voit vaihtaa kahvaliitoksen elementtejä samaan tapaan kuin muissa ehtodialogeissa. Kahvaliitoksen vapausasteet annetaan dialogissa samaan tapaan kuin ennenkin.
Parannuksia toimintoon Puuttuvien ruuvien tarkistus
Puuttuvien ruuvien tarkistus -toimintoa on parannettu versioon G4Plant 28.0. Nyt tarkistus huomioi oikein myös esimerkiksi laippojen väliin tulevan venttiilin tapauksessa pitkien pulttien tapauksen, jossa itse venttiilillä ei ole määritelty pultin pituudessa käytettäviä laippaliitospintoja. Toiminto suorittaa tarkistuksen myös entistä täsmällisemmin ja nopeammin vain aktiviisena oleva kokoonpanotaso ja sen alikokoonpanohaarat huomioiden. Lisäksi puuttuvien ruuvien merkkauspallot eivät enää tule vahingossa mukaan kokoonpanopiirustuksiin.
Parannuksia primäärikannakkeen lisäykseen putkikomponenttikirjastosta
Nyt itse tehtyjen primäärikannakkeiden lisäys putkikomponenttikirjaston kautta onnistuu myös kaikenlaisille tyyppiä PIPE-FIXED oleville putkille, kuten esim. laipallisille lasiemaliputkille. Kannakkeiden ja putkien keskiviivojen välille lisätään nyt aina myös yhtenevyys-ehto. Lisäksi kannakkeiden lisäys vahingossa putkiosien kahvoihin sijoittamalla on nyt estetty.

Parannuksia primäärikannakkeiden materiaalin valintaan
Jos käyttäjä valitsee nyt kannakkeelle materiaalin, niin myös kannakkeen aliosat saavat saman materiaalin, poislukien jousi- ja riippukannekkeiden aliosat. Käyttäjän kannaketyypille aiemmin itse valitsema materiaali voidaan tyhjentää, jolloin ohjelma käyttää kannakkeelle ja sen aliosille oletusmateriaaleja.

Eristeet oletuksena läpinäkyviä kokoonpanopiirustuksissa
Eristyksen valintadialogissa valintaruutu Läpinäkyvä kokonpanopiirustuksessa on nyt oletuksena aktivoituna. Tämä on yleisempi valinta, jolloin eristeet saadaan automaattisesti piirtymään läpinäkyvinä kokoonpanon piirustuksiin. Nyt myös isometrien kansilehtien teko noudattaa muiden kokoonpanopiirustusten tavoin asetettua läpinäkyvyyttä ja muita viivaparametreja.
Huom! Eristeet piirretään isometrien kansilehdille vain mikäli Isometrien asetuksissa Eristykset positiopiirustukseen on asetettu päälle.

Letkut
Voit lisätä ohjauspisteitä letkun reitityksen aikana
Letkua reititettäessä voidaan nyt versiossa G4Plant 28.0 osoittaa välipisteitä myös ilmaan tai tietylle etäisyydelle tasopinnoista oikeiden geometriapisteiden lisäksi. Tällöin valittuun paikkaan lisätään automaattisesti erillinen ohjausosa, johon letkulle syntyvä ohjauspiste saa yhtenevyys-ehdon. Näin letkun reitti saadaan seuraamaan myös ohjausosien paikoitusta.
Ohjausosa transit.vxm löytyy komponenttikirjaston hakemistosta components\Muut.
Lisää ohjauspiste -toiminto
Versiossa 28.0 on nyt myös erillinen Lisää ohjauspiste -toiminto, jolla letkuille voidaan jälkeenpäin lisätä erillisiä ohjausosia. Toiminto löytyy kokoonpanossa tilankohtaisesta valikosta Lisää > Lisää ohjauspiste. Letkulle syntyvä ohjauspiste saa yhtenevyys-ehdon ohjausosaan. Näin letkun reitti saadaan seuraamaan myös ohjausosien paikoitusta.
Ohjausosa transit.vxm löytyy komponenttikirjaston hakemistosta components\Muut.



