Lisää pdf-tiedosto alikuvaksi
Lisää pdf-tiedosto alikuvaksi piirustukseen.
Valitse Piirtäminen | Työkalut | Rasterikuvat > Rasteri.

Valitse halumasi pdf-tiedosto.

Anna resoluutio.

Aseta pdf-tiedosto esimerkiksi origoon.

Skaalaa oikeaan mittakaavaan Siirrä-toiminnolla.
Aktivoi rasterin kahva ja valitse Siirrä hiiren oikealla avautuvasta valikosta.

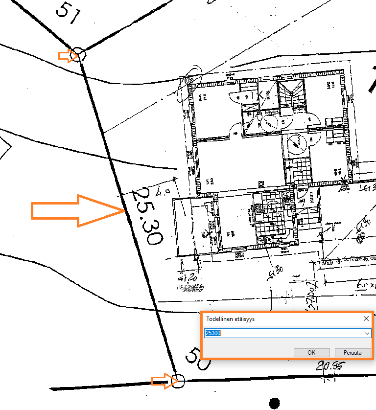
Avaa hiiren oikealla avautuva valikko uudelleen, ja valitse Mittaa ja aseta mittakaava.

Osoita pisteet, joiden välinen etäisyys on tiedossasi. Anna etäisyys teksti-ikkunaan.

Tämän jälkeen alikuva on halutussa mittakaavassa.
Osoita alikuvan uusi paikka.
